Procurar
Assinar

Subscreva!

Newsletters RL

Saber mais

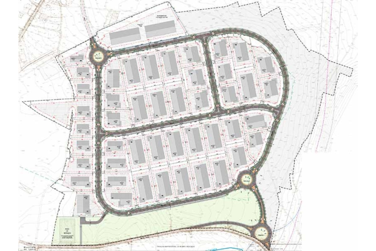
Terrenos do Parque Empresarial de Monte Redondo vão começar a ser limpos

Informação foi adiantada pelo presidente da Câmara de Leiria na última reunião do executivo.

Planta do loteamento previsto para o Parque Empresarial de Monte Redondo FOTO: Leiria Economia

O Estudo de Impacto Ambiental (EIA) para o Parque Empresarial de Monte Redondo deverá ser aprovado no início do mês de abril, decisão que vai permitir à Câmara de Leiria avançar com o concurso para a construção da zona industrial ainda no decorrer deste ano.


Deixar um comentário